Our products are long lasting and easy to clean through their intelligent design.
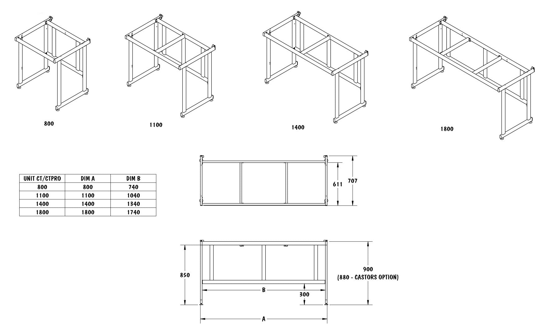
Our Monmouth Scientific base stand is designed to support our fume cupboards, providing a secure, ergonomic and hygienic platform for a wide range of controlled environments.
The static base stand includes adjustable feet for stability on uneven floors and is constructed from mild steel box section with a durable, powder-coated finish. This provides excellent chemical resistance and makes cleaning quick and easy. Supplied flat packed, the stand is quickly assembled on-site. Its open-frame design promotes cleanroom airflow and allows clear access underneath for floor cleaning, while the inset front and rear legs allow the stand to sit flush against skirting boards or returned flooring.
For greater flexibility, a mobile version is also available. This features four lockable castors, allowing the cupboard to be easily repositioned or moved for cleaning, maintenance, or reconfiguration of workspace layouts, without compromising stability during use.
Both versions are ideal for pharmaceutical, healthcare and clean manufacturing settings and are built to the same high hygiene and performance standards as the fume cupboards they support.
These base stands can be used with the following Monmouth Scientific fume cupboards:
LECA-FCS80 and LECA-FCS/M80 - LECA-FC80/LECA-FCP80 (800mm)
LECA-FCS110 and LECA-FCS/M110 - LECA-FC110/LECA-FCP110 (1100mm)
LECA-FCS140 and LECA-FCS/M140 - LECA-FC140/LECA-FCP140 (1400mm)
LECA-FCS180 and LECA-FCS/M180 - LECA-FC180/LECA-FCP180 (1800mm)
<ul>
<li>Widths: 800/1100/1400/1800mm</li>
<li>Depths: 707mm</li>
<li>Height: 900mm</li>
</ul>
<ul>
<li>Mild steel.</li>
<li>White powder coated.</li>
<li>Supports BS7989:2001.</li>
<li>Adjustable feet or 4 castors (2 are lockable).</li>
</ul>
Monmouth Scientific base stand for fume cupboards
Product code :
SKU:LECA-FCS80
Couldn't load pickup availability
Our Monmouth Scientific base stand is designed to support our fume cupboards, providing a secure, ergonomic and hygienic platform for a wide range of controlled environments.
The static base stand includes adjustable feet for stability on uneven floors and is constructed from mild steel box section with a durable, powder-coated finish. This provides excellent chemical resistance and makes cleaning quick and easy. Supplied flat packed, the stand is quickly assembled on-site. Its open-frame design promotes cleanroom airflow and allows clear access underneath for floor cleaning, while the inset front and rear legs allow the stand to sit flush against skirting boards or returned flooring.
For greater flexibility, a mobile version is also available. This features four lockable castors, allowing the cupboard to be easily repositioned or moved for cleaning, maintenance, or reconfiguration of workspace layouts, without compromising stability during use.
Both versions are ideal for pharmaceutical, healthcare and clean manufacturing settings and are built to the same high hygiene and performance standards as the fume cupboards they support.
These base stands can be used with the following Monmouth Scientific fume cupboards:
LECA-FCS80 and LECA-FCS/M80 - LECA-FC80/LECA-FCP80 (800mm)
LECA-FCS110 and LECA-FCS/M110 - LECA-FC110/LECA-FCP110 (1100mm)
LECA-FCS140 and LECA-FCS/M140 - LECA-FC140/LECA-FCP140 (1400mm)
LECA-FCS180 and LECA-FCS/M180 - LECA-FC180/LECA-FCP180 (1800mm)
<ul>
<li>Widths: 800/1100/1400/1800mm</li>
<li>Depths: 707mm</li>
<li>Height: 900mm</li>
</ul>
<ul>
<li>Mild steel.</li>
<li>White powder coated.</li>
<li>Supports BS7989:2001.</li>
<li>Adjustable feet or 4 castors (2 are lockable).</li>
</ul>
